Одноэтажный дом проекты с 3 спальнями – Проекты одноэтажных домов с тремя спальнями. Удачные планировки

Проекты одноэтажных домов с тремя спальнями
Почему необходимо строить дом с проектной документацией
Если вы мечтаете стать владельцем нового дома, на первом этапе вам необходимо рассмотреть готовые проекты одноэтажных домов с тремя спальнями или заказать документацию с нуля. Прежде, чем приступить к выбору, следует определиться с главными критериями – сколько комнат вы хотите иметь, какой площади, как они должны располагаться, будет ли в доме или рядом гараж, веранда или терраса, сколько в доме должно быть санузлов.
Строить дом без проекта крайне неразумно и просто невыгодно. Вот несколько причин, по которым надо выбирать возведение дома по документам:
-
-
- в доме, который продуман до мелочей, комфортнее жить,
-
-
-
- проект облегчает покупку стройматериалов: вам будет проще выбрать тип изделий и определить их необходимое количество, просчитать будущие расходы,
-
-
-
- проекты домов и коттеджей позволяют рассчитать возможность экономии на водоснабжении, электричестве, отоплении,
-
-
-
- строительство проще, а следовательно, быстрее вести,
-
-
-
- отсекаются лишние траты, что помогает экономить.
-
Разрабатываемые совместно с архитектором проекты одноэтажных домов с тремя спальнями – это возможность вникнуть во все мелочи и создать по-настоящему продуманную планировку дома.
Важно помнить! От того, сколько человек в вашей семье и сколько ожидается гостей, зависят размеры гостиной. Величина кухни зависит от наличия определенного набора бытовой техники и размещения ее крупных предметов – плиты, холодильника, посудомоечной машины, духового шкафа. В спальне обязательно должен быть гардероб. Размеры котельной зависят от величины котла.
Как оптимизировать пространство
Лучший для этого вариант – совмещение помещений. Это позволит вам сделать проекты одноэтажных домов с тремя спальнями просторнее без потери функциональных качеств и комфорта. Самый популярный пример – совмещенный санузел. Кроме того, можно объединить котельную с кладовкой (при этом важно помнить о нормах безопасности). Гостиную можно объединить со столовой или устроить совмещенную со столовой кухню.
Занимаясь рациональным распределением пространства, однако, не следует забывать о том, что в доме все-таки должен быть определенный перечень комнат. Индивидуальное проектирование домов обязательно должно предусматривать гостиную, кухню, столовую, кладовку, санузел.
Если все желаемые помещения так не умещаются в доме необходимой площади, можно рассмотреть такой вариант, как проекты одноэтажных домов с тремя спальнями и мансардой. Это позволит создать наверху вполне пригодные для жилья комнаты без подключения серьезных финансовых вложений. Однако это приведет к появлению лестниц. Существует также вариант создания цокольного этажа, однако это приведет к сооружению более дорогого фундамента.
Проекты домов дома с 3 спальнями, 1-этажные дома готовые и типовые. Каталог содержит планировки, планы и чертежи
Преимущества строительства одноэтажных домов с тремя спальнями по проекту:
9 причин, по которым необходимо использовать проекты одноэтажных домов с 3мя спальнями при строительстве
Каждый застройщик ищет варианты, каким образом и на чем можно сэкономить во время строительства, как жилых коттеджей, так и помещений сезонного предназначения. И не задумываясь над тем, что именно проект облегчает строительный процесс и позволяет избежать лишних расходов, застройщики начинают строить частные одноэтажные дома с тремя спальнями без проекта.
В данной статье, мы рассмотрим, почему необходимо купить проекты одноэтажных домов с тремя спальнями. Рассмотрим основные преимущества проектов, также наличие в них схем, эскизов, фото и видео:
1. Проект и схемы одноэтажных домов с 3мя спальнями позволяют более четко представлять конечный результат строительства.
Проекты, на основании которых строятся одноэтажные дома с тремя спальнями (фото которых также зачастую прилагаются к ним) дают возможность застройщику представить новый частный дом после завершения строительства. Проект содержит большой объем информации, которую просто невозможно хранить в голове (планировка, конструктивные расчеты, схемы освещения и коммуникаций, дизайн одноэтажных домов с 3мя спальнями и многое другое).
2. Проект – лучшая гарантия того, что готовые одноэтажные дома с 3мя спальнями будут качественными и служить длительное время.
Однако следует понимать, что это условие выполнимо лишь тогда, когда жилые одноэтажные дома с тремя спальнями возводятся профессиональными строителями с большим опытом. Авторские оригинальные проекты и типовые одноэтажные дома с 3мя спальнями включают в себя параметры, которые рассчитываются исключительно с соблюдением всех норм строительства и госстандартов. На основании этого можно быть уверенными в качестве дома, что его стены и фундамент не будет трескаться, перекрытия не прогнуться и будет комфортный климат для проживания. Одноэтажные коттеджи с тремя спальнями, которые возводились по проекту, как правило, являются целостным организмом, с хорошо продуманной планировкой и учетом большого количества особенностей. Например, планы одноэтажных домов с 3мя спальнями, в которых учтены особенности расположения дома к сторонам света, а также толщина, «пирог», конструкция стен; расположение и размер окон являются более экономичными в плане использования электроэнергии и теплоснабжения.
3. Проект является гарантией того, что даже недорогие одноэтажные дома с тремя спальнями будут функциональными и комфортными.
Строительство по индивидуальным проектам является достаточно популярным, поскольку позволяет застройщикам включать в проект удобную и функциональную планировку. Планировка одноэтажных домов с 3мя спальнями серьезный вопрос, решать который нужно с ответственностью и не спеша. Это объясняется тем, что каталог одноэтажных домов с 3мя спальнями предлагает много вариантов планировки, и ошибиться на данном этапе будет дорого стоить в будущем из-за переделки недочетов.
4. Проект – важнейший инструмент, предотвращающий будущие переделки.
Проект позволяет строителям четко увидеть конечную цель, что позволяет предотвратить ошибки во время строительства и необходимость проведения переделок в будущем, а следовательно избежать излишних расходов.
5. Проект позволяет передавать часть полномочий, связанных с возведением дома, привлеченной стороне.
Строительные компании могут быть привлечены и приступить к выполнению строительных работ исключительно при наличии проекта.
6. Проект позволяет проводить контроль качества, выполняемых строительных работ.
Какие-либо претензии к строителям, касающиеся качества работ по строительству дома, могут быть предъявлены исключительно, опираясь на информацию, которая есть в проекте. Любые устные пожелания по поводу высоты потолков, толщины стен, размера окон не обязывают строителей к их выполнению.
7. Проект – основа для создания сметы.
Без наличия проекта невозможно составление сметы, которая выступает надежным инструментом контроля расходов строительных материалов.
8. Проект делает строительство более экономичным.
На основании проекта может быть просчитана стоимость одноэтажных домов с 3мя спальнями и составлена смета, содержащая информацию о видах, цене и количестве материалов. А это позволяет избежать закупки лишних материалов.
9. Проект позволяет беречь нервы и время.
Когда строительство дома идет по плану в соответствии с проектом, можно быть спокойным. Это исключает необходимость постоянного присутствия на стройке.
Проекты одноэтажных домов с тремя спальнями: 14 вариантов
Главная » Разное » Планировка 1-этажного дома с тремя спальнями — выбираем проект по вкусу
Собираясь строить дом, можно заказать его проектирование специалисту, а можно попытаться переделать один из имеющихся вариантов под свои требования. В любом случае, надо четко представлять чего вы хотите. Очень желательно, чтобы ваши желания были хорошо продуманными. Не все, что кажется привлекательным как идея, удобно в эксплуатации. И такие «мелочи» надо знать. Часть информации разберем, пытаясь найти подходящий проект одноэтажного дома с тремя спальнями. Почему так? Потому что это наиболее распространенный вариант, который подходит для семей из 4 человек. Именно таких большинство.
Общие принципы планировки
Содержание статьи
Когда вы ищите готовые проекты одноэтажных домов с тремя спальнями или пытаетесь создать на основе найденного свой, важно помнить несколько моментов.
-
- Для условий климата с холодными зимами наличие тамбура крайне желательно. В этом случае холодный воздух при каждом открывании дверей не будет попадать в жилые помещения. Если тамбур совсем уж не вписывается в пределах стен, его можно вынести и сделать в виде пристройки. Не самое изящное решение, но имеет право на существование.
- Все помещения, где требуется подведение воды/канализации (кухня, ванна, туалет, котельная) располагать лучше рядом. Так инженерные системы будут проще, меньше потребуется материалов, получится значительно дешевле. При планировании дома надо придерживаться определенных правил
- При проживании в доме 4 и более человек, желательно иметь два санузла. Вы это оцените. Пусть даже один будет совсем небольшой — только унитаз и раковина. Даже если располагаются они через стенку, это очень удобно.
- При размещении в доме котла, необходима котельная. Требования к котельным в частном доме можно посмотреть тут, но основное, что надо помнить — при высоте потолков не менее 3 метров объем помещения должен быть не менее 15 кубов и в помещении обязательно должно быть окно.
- Сразу прорисовывайте расположение крупногабаритной мебели. Во всяком случае, положение кроватей и шкафов в спальнях, расположение мебели и мойки на кухне.
Это те принципы, которых желательно придерживаться. Но и это не догма. Все можно решить (кроме требований к котельным). Решения, действительно существуют разные, под разные запросы и вкусы. Требуется только желание и определенная сумма.

Если все три спальни разместить рядом
Многие проекты одноэтажных домов с тремя спальнями спланированы таким образом, что все спальни находятся в одной стороне дома. С одной стороны это удобно. Относительно шумные помещения — гостиная и кухня оказываются в противоположной стороне. С другой стороны, не всем нравится такое расположение — опасаются что дети могут оказаться свидетелями ненужных сцен.

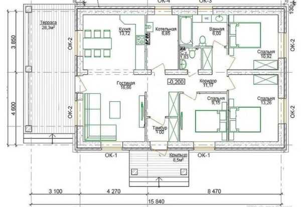
Пример планировки одноэтажного дома с тремя спальнями на 110 квадратных метров
В приведенном выше проекте именно так планировка и сделана: все три спальни находятся в правой стороне дома и имеют примерно одинаковую площадь. Из положительных моментов — все спальни от гостиной далеко. При таком расположении комнат можно в гостиной спокойно смотреть телевизор, принимать гостей, не боясь помешать отдыху.
Из недостатков — туалет и ванная находятся далеко от кухни и котельной. Не самый удобный вариант для прокладки коммуникаций. Из других особенностей — длинный коридор со множеством дверей. Эту площадь никак не используешь, так как свободные простенки очень маленькие.
Проект одноэтажного дома с тремя спальнями и террасой
При планировании террасы, обращать внимание надо сразу на несколько моментов. Первый — для оптимальной освещенности лучше, если терраса выходит на юг или восток. Второе — из какого помещения будет выход. Чаще всего делают выход на террасу из гостиной. Это самый логичный случай. Второй вариант — выход из коридора, который, как правило, примыкает к гостиной или кухне (гораздо хуже, но возможно). Обратите внимание, что очень удобно, если рядом с входом на террасу находится кухня — заносить/выносить блюда, напитки и т.п. Ведь терраса часто используется именно для посиделок на открытом воздухе.
Эти два момента уже частично определяют планировку вашего дома — гостиная должна иметь выход на южную или восточную сторону. Значит ее положение определено. К гостиной должна примыкать кухня, а еще желательно все помещения, подключаемые к техническим коммуникациям «собирать» в одной зоне … То есть, вы практически решили, где находятся гостиная, кухня, технические помещения. Осталось расположить спальни и организовать удобный проход.

С террасы должен открываться интересный вид
Но это еще не все, что надо учесть при планировании террасы. Есть третий момент — ее размер. Тут подход индивидуальный — кому-то требуется много места, кому-то достаточно поменьше. Интересный вариант — Г-образная терасса, которая охватывает южную и восточную стены строения. Если ее остеклить, можно превратить в летний сад… Если вам это интересно.
И четвертый момент, на который тоже стоит обратить внимание при разработке планировки дома. Терраса интенсивно используется и является любимым местом отдыха, если с нее открывается вид на сад, красиво оформленный задний двор, на речку и т.п. Если же взгляд упирается в забор соседа, никому это не интересно. При таком положении терраса не используется, постепенно превращается в «техническое помещение» — поставить газонокосилку, сушилку, и т.д. Это определяет еще и положение дома на участке. То есть, большую часть задач по планировке дома вы решили.
Вариант 1: с террасой вдоль всей короткой стены
Давайте рассмотрим несколько проектов одноэтажных домов с тремя спальнями и террасами. В представленном варианте выход на террасу сделан из гостиной. Сюда же выходит кухонное окно. Если сделать широкий подоконник, открывающееся полностью окно, можно передавать блюда через окно.
Все технические помещения собраны в одном месте и расположены возле кухни. Спальни находятся в противоположном конце дома, что, в общем-то, удобно — можно принимать гостей или смотреть телевизор в гостиной и не мешать тем, кто решил отдохнуть.

Проект одноэтажного дома с 3 спальнями и террасой
Дополнительная несущая стена в этом проекте одна — почти посередине вдоль длинной стороны дома. Кухня-гостиная едина, но можно установить перегородку и разделить помещения. В этом случае придется выделить часть гостиной, но, при данной площади — почти 17 метров — это не очень критично.
Спальни, в этом проекте, имеют разные размеры: 9, 11, 13 метров. Удобно это или нет — решать вам. При желании, размеры спален можно увеличить за счет уменьшения площади котельной (при 3-х метровых потолках достаточно площади в 5 квадратов, так что ресурс есть). Самую маленькую спальню можно увеличить, если перенести шкаф на другую стену, сдвинув перегородку, отгораживающую гостиную. Кстати, этот проект одноэтажного дома с тремя спальнями имеет еще один плюс — гардеробную при входе. Это действительно удобно.
Вариант 2: с короткой террасой вдоль длиной стороны дома
Рассмотрим еще один вариант планировки одноэтажного дома с тремя спальнями и террасой. Он отличается положением «влажного» блока — кухни/ванной/котельной/туалета. Они перенесены на противоположную сторону. Площади спальных комнат «выровнены» за счет уменьшения площади кухни. Обратите внимание: тамбур сделан выносной. Это тоже внесло свой вклад в то, что при относительно небольших размерах дома — 10*14 метров (площадь 140 квадратных метров) — размеры всех комнат солидные, ширина коридора — 1,7 метра, что тоже неплохо.

Проект одноэтажного дома с тремя спальнями и террасой
Терраса имеет выход из гостиной, занимает только часть длинной стены. Если этот вариант обыграть, получится очень неплохо. Например, рядом можно поставить пруд, установить фонтан, разбить красивую клумбу.
С местом под автонавес или гараж
Если рядом с домом надо разместить навес для машины или гараж, можно изменить планировку так чтобы вход в дом был ближе к месту стоянки. Тогда есть возможность объединить навес стоянки и крыльца. Получится может очень даже интересно.
При планировании навеса лучше найти место под две машины. Даже если машина у вас одна, к вам будут приезжать гости и намного удобнее, если ее можно поставить под крышу. Расходы на обустройство не слишком отличаются, а всегда надо смотреть на перспективу. Может и у вас появится вторая машина.

Проект 1 этажного дома стремя спальнями и навесом для машины
Чем хорош еще навес для машины? Под ним можно оборудовать место для хранения всякого инвентаря: автомобильного, садового. Там же можно отгородить место под дровник или поленницу — чтобы иметь возле дома запас сухих дров. Вообще, использовать эту зону можно по-разному. И оптимальные размеры ее — 8*9 метров или около того. Это, если площадь участка позволяет. Если нет, можно исходить из минимальных габаритов — на 2 метра шире и на 1,5 длиннее вашего авто.
Представленный выше проект одноэтажного дома с тремя спальнями имеет площадь 100 квадратных метров, выполнен в виде прямоугольника со сторонами 8,8*12 метров. Расположение спален все такое-же — одним блоком, все технические помещения также сведены в одном месте. При такой планировке коридор получается совсем небольшим, что многих обрадует, но это будет «проходная» зона, в которой ничего не поставишь.
Если надо спальню родителей разместить отдельно
При выборе планировки многие считают, что спальню родителей надо располагать на некотором расстоянии от детских. В этом случае подход к планировке меняется — оптимальна вытянутая прямоугольная форма дома. Длинную сторону делят на три части две несущие стены.

Такой, дом с Г-образной планировкой по стоимости выходит более дорогим, чем прямоугольный или квадратный
Вариант 1: без коридора
Если разделить дом на три части, есть возможность разработать планировку дома с тремя спальнями без коридора. Одна треть дома делится на две спальни для детей, среднюю часть занимает совмещенная кухня/гостиная, последняя треть делится между входной группой/санузлом и спальней родителей.
Там где расположена спальня для родителей, из кухни/гостиной организован вход в санузел. Насколько удачно такое решение? Плюс тут видится такой — большая кухня/гостиная. Но она — полностью проходная. То есть, уединиться в ней точно не получится. Возможно, вам нравится такая идея. Хотя, чтобы оценить удобство/неудобство, стоит пожить в таком доме. Обычно это далеко не всем нравится, хотя на стадии «идеи» все казалось заманчивым.

Расположение комнат в одноэтажном доме с тремя спальнями — комната родителей расположена отдельно
Обратите внимание, что этот проект одноэтажного дома с тремя спальнями не имеет котельной. Если она необходима, выделить ее можно за счет уменьшения площади кухни/гостиной. Но тогда надо будет продумывать планировку, как организовать вход в нее. Возможный, но не очень удобный вариант — из кухни, если она будет расположена возле ванной. Второй — с улицы. Но тогда уж, можно сделать пристройку к дому. Хотя, это определяется размерами дома.
Вариант 2: с коридором
Планировку с двумя детскими и вынесенной подальше спальней родителей можно реализовать в квадратном доме (на рисунке ниже). Минимально возможные размеры — 12*12 метров. По площади это чуть больше 140 квадратов. В этом случае габариты всех помещения близки к оптимальным (квадратные, имеют площадь более 10 квадратных метров). Гостиная совмещена с кухней но не является проходной.
При возможности/желании можно сделать и в прямоугольном доме, просто квадрат более предпочтителен, так как стоимость квадратного метра жилья получается немного ниже. Надо сказать, что выигрыш совсем небольшой, так что не стоит на этом особо заморачиватсья. Лучше исходить из удобства, ведь проект одноэтажного дома с тремя спальнями выбираете для собственной жизни.

Проект квадратного одноэтажного дома с тремя спальнями
В данном варианте планировки спальня родителей вообще обособлена. Достоинство приведенного варианта — в детских есть место под гардеробные. Есть тут и недостаток — «мокрые» помещения находятся на противоположных краях дома. Устройство инженерных систем будет сложнее (кроме канализации и водопровода придется думать еще и об отдельной вентиляции).
Не всем нравится идея объединения кухни и гостиной. В данном случае можно легко проблему решить, установив перегородку. Вход в кухню может быть как из коридора, так и из гостиной.
Но, если не вносить других изменений, вход в гостиную только через кухню, что неудобно. Решить проблему можно сделав некоторые трансформации. Первая — «утопленная» входная зона становится «нормальной», в площади стен, разделяющая коридор перегородка убирается. Образуется большая входная зона, но без теплого тамбура. Зато получаем дополнительное большое по площади помещение, которое можно неплохо оборудовать. Правда, это уже другой проект одноэтажного дома с тремя спальнями (смотрите ниже).
Из этой зоны можно сделать вход в гостиную. Он получается рядом со входом, что вполне логично. Правда, функциональной остается только часть помещения, но «ущерб» можно минимизировать, приблизив двери.

Один из вариантов
Можно пойти еще дальше — убрать перегородку, отделяющую гостиную от коридора. Стена тут несущая так что потребуется установка колон. Но планировка дома будет в современном стиле — от входа единое пространство, выполняющее роль гостиной и общей комнаты. Для многих это кажется удобным.
Ещё варианты
Имея определенный набор помещений и требования по их расположению, слишком много вариантов не получишь. Приведенные ниже планировки отличаются в некоторых деталях. Может, один из них вам и подойдет.

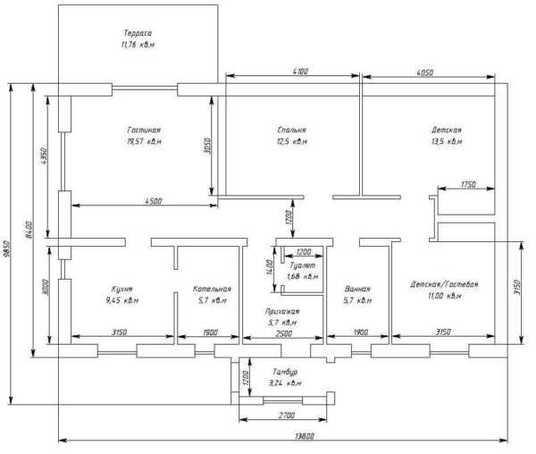
Одноэтажный дом с тремя спальнями, эркером и террасой

Проект одноэтажного дома с тремя спальнями и террасой (90 кв. м.)

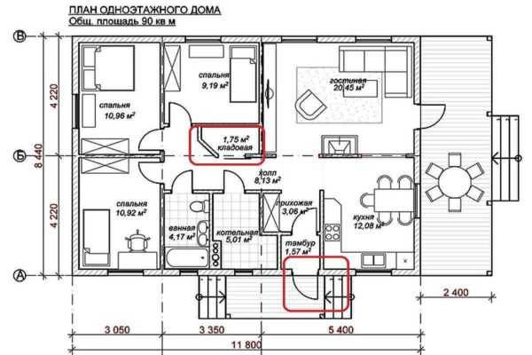
Площадь 130 кв. м, есть кладовка со входом из кухни

Если нужны раздельная кухня и гостиная. Практичное расположение с небольшим коридором

Одноэтажный дом площадью 160 кв. м, с тремя спальнями и кабинетом, котельной и небольшой угловой верандой
Проекты одноэтажных домов с тремя спальнями
Многие мечтают о строительстве собственного дома. Перед тем, как приступить к данному процессу стоит разработать качественный проект будущего сооружения. Как вариант можно подобрать проекты одноэтажных домов с тремя спальнями, которые подходят для проживания семьи из 3-6 человек. Такая планировка рассчитана на размещение детей и родителей под одной крышей. При этом одна из спален принадлежит родителям, а две другие детские или гостевые.
Одноэтажные постройки выглядят стильно и современно снаружи, а внутри отличаются удобствами и комфортом
Содержание статьи
Какие существуют проекты одноэтажных домов с тремя спальнями?
Проекты домов с тремя спальнями обладают множеством достоинств. Они подходят для проживания престарелых людей, детей или людей с ограниченными физическими возможностями.
Проект, включающий три спальных комнаты, пользуется популярностью. Даже на небольшой площади данные комнаты могут быть не проходными
Одноэтажная постройка не имеет лестниц, поэтому считается более безопасной. Для возведения таких строений не нужно устанавливать мощный фундамент.
При проживании в доме целой семьи можно родительскую спальню разместить в отдалении от детских комнат
Особенности планировки одноэтажного строения с тремя спальнями
Любое строительство следует начинать с тщательного проекта. Планировка должна быть продуманной и отображенной на чертежах.
При ограниченной площади можно пристроить дополнительные помещения. Это может быть удобная терраса для отдыха и пристроенные хозяйственные блоки
Качественный проект имеет следующие плюсы:
- планировка расписывается до малейших деталей, что способствует созданию комфортных условий;
- позволяет заранее просчитать все необходимые материалы, их количество и предварительную смету;
- определяется схема размещения водопровода, электрических сетей и отопления;
- экономятся денежные средства на приобретении материалов и снижаются незапланированные расходы;
- правильно организуются рабочие процессы.
Для маленькой семьи подойдут строения площадью до 100 кв. м. А для семьей с несколькими детьми разных возрастов стоит выбирать проект одноэтажного дома 12х12 с тремя спальнями.
Если участок не слишком большой, то к основному зданию можно пристроить не только котельную и веранду, но и просторный гараж
Полезная информация! Можно использовать готовые чертежи, проекты и фотографии одноэтажных построек, которые в избытке можно найти в интернете.
Проектирование дома
Постройки в один этаж с тремя спальнями часто возводятся на дачных и загородных участках. Перед тем, как приступить к проектированию, нужно определиться также с дополнительными постройками, которые будут на участке.
Планировка одноэтажного дома с тремя спальнями учитывает геодезические особенности территории и ее уклон. Также имеет значение местоположение двора. Классические варианты проектов включают спальни, большую гостиную и кухню. В некоторых случаях вместо кровли оборудуется площадка, мансарда или в дальнейшем планируется возведение второго этажа.
Постройка с мансардой является отличным способом расширения площади
Подобные дома предполагают возможность обустройства разнообразных дополнительных помещений. Например, кладовой, котельной или гардеробной. Распространенным вариантом считается постройка с гаражом, который позволяет грамотно расположить на участке два основных объекта. Его преимуществом является размещение сооружения даже на маленьком участке.
В пристройке для гаража может также располагаться прачечная или котельная. Также можно разместить маленькую мастерскую
Современные проекты предусматривают обустройство террасы. Такие дома можно обустроить двускатной или односкатной кровлей. Так как дома с тремя спальнями обладают значительной площадью, то чаще всего их выполняют из кирпича, газобетона и пеноблоков.
Из террасы можно сделать утепленный вариант. В этом случае оборудуется зимний сад, летняя кухня или дополнительное пространство для отдыха
Проекты одноэтажных домов значительной площади с тремя спальнями могут быть стандартными и полностью готовыми или индивидуальными. План подобного дома должен включать гостиную, кухню, три спальни, коридор, а также сантехническое помещение. На мансарде можно расположить дополнительную спальню.
Полезная информация! Более простым является проект с равными длинами всех стен, так как вытянутые с одной стороны сложнее в реализации.
В данном проекте отсутствует холл, а пространство кухни и гостиной объединяются. Площадь немного расширяется с помощью террас с двух сторон
Статья по теме:
Как выполнить эффективную планировку проекта одноэтажного дома 12х12 с тремя спальнями?
Для эффективного расширения полезной площади нужно объединить некоторые помещения и убрать лишние стены. Интересные планировки выполняются для строений с площадью 12 на 12. Важно предварительно произвести оценку помещений и их площади. При этом можно выделить комнаты, которые могут быть совмещены.
В данном проекте предусмотрены не только три спальни, но и отдельная гостиная, а также котельная
Расчеты полезной площади в доме
При создании плана одноэтажного дома с 3 спальнями нужно учитывать особенности проектирования каждой комнаты:
- размеры гостиной зависят от количества человек, которые проживают в доме. Также стоит учитывать возможных гостей;
- площадь кухни рассчитывается в зависимости от планируемого оснащения. При этом нужно продумать размещение габаритной бытовой техники и кухонной утвари;
- в спальнях должно быть оставлено место для размещения гардеробной;
- котельная планируется с учетом вида и мощности системы отопления и ее технологических особенностей.
Полезная информация! Существует множество интересных проектов в интернете, которые можно найти бесплатно. Но для нестандартной планировки потребуется помощь специалистов.
Если площадь ограничена, то не стоит экономить на площади спален, лучше объединить другие комнаты
Характеристики проектов построек одноэтажного типа до 150 кв м с тремя спальнями без мансарды
Если проекты одноэтажных домов с тремя спальнями имеют площадь до 100 кв. м, то возможно потребуется дополнительное расширение за счет дополнительных конструкций. Если здание площадью до 150 кв. м, то можно не обустраивать цокольный или мансардный этаж.
Пользуются популярностью следующие способы объединения помещений:
- объединение кладовой и котельной;
- совмещение санузла;
- соединение помещений столовой и гостиной, кухни и столовой, а также гостиной и кухни.
Полезный совет! Столовую можно объединить с другой комнатой в одном пространстве. При этом освободится место для дополнительной комнаты.
На схеме изображено объединение столовой с кухней, а также открытое пространство с кухней
Планировки с объединением комнат
Существуют разнообразные планировки с совмещением комнат. Помещения можно соединять с помощью длинного коридора. При этом ни одна из комнат не остается проходной. Спальни должны обладать достаточной площадью, чтобы на их территории можно было разместить гардеробную, спальное место и рабочий уголок.
Стоит рассмотреть следующую планировку с гардеробной:
- прихожая совмещается с гардеробной и хозблоком;
В качестве гардеробной может использоваться вместительный шкаф
- кухня, совмещенная большим проемом с гостиной-столовой;
Эргономичное соединение двух и более комнат позволяет создать воздушный интерьер с ощущением пространства
- объединенный и просторный санузел.
Большое помещение из кухни и гостиной используется как место сбора всей семьи.
Как создаются проекты одноэтажных домов из кирпича?
Подбор проектов одноэтажных домов из кирпича обладает множеством преимуществ. Кирпичная кладка отличается особой надежностью и практичностью.
Кирпичное здание – это прочное, долговечное и эстетически привлекательное сооружение
Процесс строительства состоит из нескольких этапов:
- возведение ленточного основания;
- монтаж перекрытий из железобетона и стен;
- создание стропильной системы и кровельной конструкции.
Планировки с плоскими кровлями требуют дополнительного утепления и защиты от влажности. Проект должен включать столовую, кухню, кладовую, гостиную и санузел. Гардеробная обустраивается как отдельное помещение или включается в состав других комнат.
Правильное планирование позволяет создать комфортный и функциональный дом для проживания. Работая над проектом, не стоит забывать о правилах безопасности, технических требования и индивидуальных вкусах и предпочтениях.
от расположения комнат до идей по оптимизации пространства
Мечтая о собственном доме, вы наверняка рисовали в своем изображении многочисленные варианты планировки и оформления. Когда дело доходит до непосредственного составления документов на строительство, конечно, лучше обратиться к профессионалам, но еще до заказа следует определиться с основными требованиями. Чем лучше вы продумаете свои желания, тем идеальнее получится проект. Тема этого материала Housechief.ru – проект одноэтажного дома с тремя спальнями. Это один из самых востребованных вариантов для семейных пар с детьми. Как его выбрать, на что следует обратить внимание и возможные варианты – в нашей статье.

Немного об общих принципах проектирования
Какой бы проект дома вы не выбрали, важно придерживаться нескольких основных принципов, благодаря которым ваше жилье гарантированно будет комфортным и безопасным:
- для регионов с суровыми климатическими условиями следует выбирать планировки с входной группой – коридором или тамбуром;
- помещения, которые необходимо оснащать коммуникациями, следует располагать рядом;
- для семьи из 5 и более человек следует предусмотреть не меньше двух санузлов;
- важно очень внимательно отнестись с проектированию комнаты котельной – для этого есть специальные нормативы, которые нужно неукоснительно соблюдать;
- не стоит жертвовать комфортом в пользу эстетики. Со временем любой архитектурный изыск приестся, а чувство дискомфорта останется навсегда.
Возьмите на заметку:
Во всем остальном – полагайтесь на свою фантазию и вкус, а также на рамки бюджета строительства
В чем заключаются особенности проектирования дома с тремя спальнями
Прежде чем приступить к процедуре проектирования, нужно определиться с назначением всех комнат. Они могут быть детскими, комнатами для пожилых людей, гостевыми или супружескими спальнями. У каждого из этих назначений есть свои особенности: необходимо понимать, как именно они будут связаны с общей зоной, как освещены и чем оснащены.
Спальни не должны быть проходными
Важный момент – организация естественной вентиляции и освещения. Последнее правило означает, что хотя бы одна стена комнаты должна быть несущей стеной здания.
Расположение комнат – существенный момент, и существует несколько решений:
План одноэтажного дома с 3 спальнями вдоль одной из стен
Вы найдете множество типовых планировок, в которых все три спальни размещены в одной из сторон дома. Гостиная и кухня расположены отдельно, и это в своем роде удачное решение, потому что ничто не помешает сну: ни музыка в гостиной, ни грохот посуды и ароматы пищи.
Есть в такой планировке свой нюанс – супружеская спальня находится слишком близко к детским комнатам, а это не самый лучший вариант
Еще один недостаток – санузел размещен далековато от спальни, так что придется по ночам путешествовать по темному длинному коридору. Да и сам коридор – нерациональное использование пространства, согласитесь.
Тем не менее, такое расположение имеет право на существование, и вот еще один пример подобного проекта:

Планировка одноэтажного дома с тремя спальнями с отдельным расположением
Отделение родительской спальни от детских комнат диктует свои условия распределения пространства. Можно совсем отказаться от коридора, отделив треть дома под детские спальни, разместив по центру гостиную и распланировав в остальном пространстве спальню родителей и санузел.
В этом случае вы получите просторную проходную гостиную
Неплохая планировка 1 этажного дома с 3 спальнями, если не принимать во внимание необходимость отказаться от поздних вечеринок.
К сведению! Если есть необходимость выделения отдельного помещения под котельную, его можно организовать за счет отделения площади от родительской спальни.
Другая идея планировки – отделение гостиной, совмещенной с кухней, в доме квадратной формы. В этом случае гостиная не будет проходной: она граничит с родительской спальней и отделена от детских. Недостаток только в необходимости тщательно продумать проводку инженерных коммуникаций. Примеры такого размещения:
Как оптимизировать пространство небольшого одноэтажного дома
Есть нормы, гарантирующие комфорт проживания. Так, на каждого члена семьи должно быть не меньше 9 квадратных метров помещения. Если по каким-то причинам есть необходимость обойтись этим минимумом, можно рассмотреть варианты оптимизации пространства. Для этого можно совместить функциональное назначение комнат. Например, в спальне разместить рабочий кабинет, или разделить детскую комнату на игровую зону и зону отдыха:
В решении этой задачи вам на помощь придут производители трансформирующейся мебели. Особенно много вариантов детской мебели, которая легко превращается в стол или шкаф.
Вы можете использовать и подвижные перегородки для временного зонирования, устанавливать подиумы
С помощью грамотной планировки можно без труда выделить место под дополнительный санузел.
В загородном доме неплохая идея – сделать дополнительный выход из спальни в сад или на террасу.
Значительно сэкономит пространство встроенная бытовая техника
Как правильно адаптировать проект дома под климатические особенности региона
Рассматривая типовые проекты, имейте в виду, что они разработаны без учета климатических особенностей вашего региона. Согласитесь, есть значительная разница, расположен ваш дом на севере Карелии или в районе Сочи? Адаптировать типовой вариант вам помогут в проектном бюро. Специалисты предусмотрят специальную защиту фундамента, стен и кровли, подберут подходящие размеры окон, соотнесут расположение оконных и дверных проемов с ландшафтом участка.
Адаптируя типовой проект, следует учитывать и прохождение коммуникаций по территории участка
Если всего этого не предусмотреть – в процессе стройки вы столкнетесь с многочисленными сложностями, которые не только испортят вам настроение, но и приведут к незапланированным тратам.
Плюсы и минусы одноэтажных домов с тремя спальнями с сравнении с домами в двух уровнях
С финансовой точки зрения строительство дома в двух уровнях или с мансардой – более выгодный вариант. Основная статья экономии – расходы на обустройство фундамента и кровли. А что в плане комфорта? Одноэтажный дом все так же проигрывает двухэтажному? Оказывается, нет!
Главное неудобство двухуровневой планировки заключается в необходимости перемещения по лестнице
На лестницу нужно выделить место, да еще и продумать ее безопасность: вдруг вашему маленькому ребенку среди ночи захочется в туалет?
Да, удобно, что гостиная и кухня будут на отдельном этаже, но зато в одноэтажном строении вы сможете сделать несколько выходов в сад
Если отвлечься от эстетической составляющей и подумать о практичности – то и тут преимущество у одноэтажных коттеджей. Все ремонтные работы проводить гораздо легче, не нужны леса или подъемники. Еще один нюанс – двухуровневый дом труднее протопить зимой, чем одноуровневый. Площадь теплопотери тут гораздо меньше.
Так что если размеры участка позволяют вам выделить полноценную площадку под одноэтажный дом – действуйте смело.
Строить многоуровневую конструкцию имеет смысл только при необходимости экономить площадь надела
Как правильно выбрать проект?
Есть несколько правил подбора типового проекта 1 этажного дома с 3 спальнями, которые помогут вам сделать оптимальный выбор:
- начните с допустимой площади дома – для этого изучите размеры участка. Вряд ли вам удастся построить полноценный дом в 200 квадратных метров, есть у вас в наличии всего три сотки земли. Строительные нормы диктуют необходимость отступить от границ участка до стен дома 3 метра и от дороги – 5. Подумайте, сколько места вам нужно для сада, где будут находиться хозпостройки, и не слишком ли близко к вам расположен деревянный дом соседа – вдруг пожар? Если вы рискнете построить дом вопреки существующим пожарным и санитарным нормам, не исключено, что после ссоры с соседями вы получите предписание суда снести строение;
Если рядом есть водоем – то сразу узнайте, не разливается ли вода в путину. Не рискуйте строить дом слишком близко к берегу: следует отступить как минимум метров 50
- после вычисления свободной для постройки площади определитесь с необходимым количеством помещений и их назначением. Подумайте, в какой стороне лучше разместить детские и кухню;
Изучите место прохождения инженерных коммуникаций по участку и возможность подключения к ним
- и только после двух предыдущих этапов начинайте рассматривать каталоги типовых проектов. А отсеяв большую часть из них как неподходящую под ваши требования, вы можете дать волю фантазии. Но не забывайте про комфорт!
Коллекция популярных проектов домов с тремя спальнями
Мы подобрали для вас небольшую коллекцию популярных типовых проектов, которые можно адаптировать под климатические особенности региона. Посмотрите, возможно среди них – дом вашей мечты.
Проекты одноэтажного дома с 3 спальнями из кирпича
Кирпич – самый надежный и долговечный материал для строительства. Из него вы сможете построить здание любой формы. Вот несколько типовых проектов домов с 3 спальнями и гостиной:
Проект блочного одноэтажного дома 10 × 12 с тремя спальнями
Вот интересный вариант плана одноэтажного дома 10х12 с тремя спальнями, который подойдет для семьи с детьми:

Планировка деревянного одноэтажного дома с 3 спальнями
Мода на экологичные деревянные дома – на самом пике. Предлагаем вашему вниманию интересный проект деревянного одноэтажного дома с тремя спальнями:

Проект каркасного одноэтажного дома с тремя спальнями для семьи из 4 человек
Если место для строительства и бюджет ограничены – выбирайте каркасную технологию. Всего за миллион-полтора вы сможете построить добротный теплый дом для всей семьи. Для примера проект одноэтажного дома 10х10 с тремя спальнями:

Проект одноэтажного дома с 3 спальнями и гаражом
Загородный дом обязательно должен иметь гараж для автомобиля. Можно разместить его отдельно или, в целях экономии, предусмотреть одноэтажный дом с тремя спальнями и встроенным гаражом:

Проект одноэтажного дома на три спальни с верандой
Веранда в загородном доме – непременный атрибут. Вот удачный план 1 этажного дома с 3 спальнями и верандой:

Остановитесь ли вы на одном из этих типовых проектов или разработаете собственный – главное, чтобы были учтены пожелания всех членов семьи. Собственный дом – это не только комфорт, но и большая ответственность, так что подходите к выбору лучшего проекта одноэтажного дома с тремя спальнями со всей серьезностью.
Еще несколько нюансов выбора проекта дома в этом видеоматериале:
Рассмотрим проект одноэтажного дома с тремя спальнями

Дом с тремя спальнями одноэтажный
Одноэтажный дом с 3 спальнями имеет преимущества перед двухэтажным сооружением своей доступностью для людей имеющих ограниченную подвижность, пожилых и детей.
Помимо этого многие владельцы земельных участков предпочитают строительство не огромных многоэтажных коттеджей, а небольших уютных домиков в один этаж. Как сделать проект одноэтажного дома на 3 спальни предлагает рассмотреть эта статья.
Содержание статьи
С чего начинается строительство дома
Прежде чем приступить к строительству любого сооружения необходимо обдумать и начертить его проект.
В этом случае можно:
- Получить максимальные удобства от тщательно продуманной планировки дома.
- Четко определить набор строительных материалов, их количество, выясняется предварительная цена приобретения.
- Подсчитать ориентировочно экономический эффект от отопления, использования воды и электричества.
- Экономия в использовании строительных материалов.
- Уменьшаются расходы на строительство дома, и облегчается процесс работы.
Совет: При выборе проекта для строительства одноэтажного дома необходимо учитывать, что для небольших семей используются строения площадью до 100 квадратных метров.
Как проектируется одноэтажный дом с тремя спальнями
Проекты домов одноэтажных с 3 спальнями адаптированы к современному миру. Они идеально смотрятся в лесном массиве.
Их планировка обеспечивает ежедневный комфорт всей семье.
Удобный дом с тремя спальнями
Над парадным проходом расположена красиво расширенная крыша, представляющая собой крытое крыльцо.
План одноэтажного дома с тремя спальнями включает в себя:
- Гостиную — это самая большая комната. Здесь расположены специальные отделения в стенах, где устанавливаются шкафы и телевизор. Из гостиной есть выход в сад.
- Кухня. В ней находится кладовка и большое окно, посредством которого можно следить за игрой детей, находящихся во дворе.
- Три спальни, но при необходимости можно пристроить на чердаке еще одну.
- Просторный коридор, через который можно пройти в любую комнату.
- Между гостиной и кухней располагается камин, который связан с отопительной системой, что в зимнее время обеспечивает всему дому полноценное отопление.
- В подсобном помещении находятся санузел и большая ванная комната.

План дома одноэтажный с 3 спальнями
Как увеличить функциональность дома
Прежде чем определить какие помещения можно совместить необходимо, рассмотреть каждую комнату – ее полезную площадь:
- Гостиная рассчитывается с учетом всех членов семьи и максимального количества гостей.
- Размер кухни планируется с точки зрения ее функциональности. Здесь нужно учитывать необходимость удобства приготовления пищи.
- Под гардеробы площадь выделяется в каждой комнате, а можно устроить общий гардероб своими руками.
- Под котельную помещение рассчитывается под котел и его технологические требования.
При распределении помещений по размерам учитывается масса нюансов, поэтому приобрести проекты одноэтажных домов с тремя спальнями бесплатно не получится. Владелец участка понять основные принципы и рассмотреть примеры может, но правильно все рассчитать должен проектировщик-профессионал.
Самыми распространенными объединениями могут быть:
- Совмещение санузла.
- Гостиной и кухни, или столовой и кухни, как показано на фото. В этом случае под две зоны можно выделить одно помещение.
- Котельной и кладовки. Хотя такой вариант и неправильный, но часто встречается в домах.

Совмещение кухни и столовой
При таком совмещении можно максимально использовать площадь и увеличить конкретно жилую комнату в одноэтажном доме с тремя спальнями.
В этом случае:
Три комнаты под помещения для спален – оптимальная планировка для одноэтажного дома. Видео в этой статье сможет помочь понять основные принципы расположения комнат, на которые необходимо обращать внимание перед началом проектирования домов.
Планирование своего дома размерами 10х10 с тремя спальнями
Проект одноэтажного дома 10х10 с тремя спальнями
Одноэтажный дом 10х10 с тремя спальнями хорошо подходит для небольшой семьи, планирующей рождение детей.
Такой дом можно построить быстро или выполнить капитальное строительство из нескольких видов материала:
- «Канадская технология» позволяет быстро выстроить дом и достаточно долгое время эксплуатировать.
- Быстро возможно строительство из пеноблоков, что позволяет экономить время и проводить утепление по простой схеме.
- Строительство из кирпича. В этом случае строить один этаж намного легче.
Самый простой вариант для возведения дома с тремя спальнями –использование пеноблоков или кирпича.
В этом случае необходимо:
- Уложить ленточный фундамент.
- Сделать железобетонные перекрытия.
- Чердачный вариант требует деревянных стропил, плоская крыша – гидроизоляцию железобетонных перекрытий.
Инструкция предлагает, что в доме с тремя спальнями должны быть:
- Гостиная.
- Кладовка.
- При необходимости небольшое помещение под гардероб.
- Кухня.
- Столовая.
- Общий или раздельный санузел.
Совет: При планировании своего жилья необходимо обратить внимание, что некоторые комнаты можно совместить, что позволит увеличить функциональность всего сооружения и использовать всю квадратуру с максимальной пользой.
Строительство каркасного дома
Особенностями строительства каркасных домов являются их:
- Скорость возведения. Достигается благодаря тому, что конструкция коттеджа возводится достаточно быстро.
- Стоимость. Этот показатель снижается за счет уменьшения затрат для возведения тяжелого фундамента и применения дорогостоящих материалов, уменьшения скорости возведения.
- Монтаж конструкций можно производить круглый год, что не отразится на конечном результате.
- Малый вес здания не дает большой усадки, поэтому можно начинать отделку дома сразу по окончании его монтажа.
- При изготовлении каркаса в заводских условиях все материалы обрабатываются для защиты от действия влаги, вредных химических веществ, что предохраняет дом от появления трещин при эксплуатации.
В России принято использовать две основных технологии возведения каркасных домов:
- Канадская, подразумевает использование плотного утеплителя типа экструдированного пенополистирола.
- Финская, использует минираловатные утеплители с низкой плотностью и применением более массивного каркаса.
В любом случае при выборе той или иной технологии основными критериями должны быть:
- Качество строения.
- Долговечность эксплуатации.
- Экономия электроэнергии.
- Простота конструкции.
- Дешевизна дома.
Хотя таким критериям должны отвечать все дома, но проект одноэтажного каркасного дома с тремя спальнями является самым доступным, во всех отношениях.
Недостатком такого строительства при использовании уже готовых каркасных домов — отсутствие в этот момент достаточной суммы денег и определенное ограничение количества материала. Тогда как штучная технология предоставляет возможность поэтапно осваивать имеющиеся средства.
способы планировки жилья с размерами 10х12, 9х9, 12х12, особенности возведения
Идея строительства загородного дома посещает немало семей. Если под одной крышей живет несколько поколений, коттедж – отличное решение. Стоит тщательно спланировать будущий дом, ведь от конфигурации комнат зависит функциональность помещения. Проект одноэтажного дома с тремя спальнями учитывает все детали, чтобы жизнь в новом коттедже приносила только положительные эмоции.
Общие принципы планирования
Прежде чем приступить к проектированию, стоит учесть ряд аспектов. Продумав детали сразу, можно избежать неудобств. Сначала внимание уделяется анализу уклона и геодезических особенностей территории, где будет строиться коттедж. Определяется место для расположения двора, гаража и других дополнительных построек.
Нахождение в таком климате, где холодные зимы, требует при планировке дома с тремя спальнями учесть наличие тамбура. Это поможет избежать попадания холодного воздуха внутрь дома при открывании входных дверей. Можно выбрать любое расположение (в пределах стен дома или в виде дополнительной пристройки), на функциональность это никак не повлияет.

Пример №1 планировки дома с тремя спальнями
Если отопление в коттедже будет проходить с помощью котла, стоит продумать место для размещения. К котельным предъявляются высокие требования к безопасности.
Важным аспектом считается подведение канализации и простота инженерной системы. Для снижения затрат и количества материалов, стоит располагать такие помещения, как ванная комната или туалет, рядом. Если в коттедже будет жить более трех человек, нужно продумать наличие двух санузлов.
На этапе проектирования стоит оговаривать расположение мебели крупных размеров. Это позволит без проблем поставить кровати и шкафы в выбранном месте, когда дом уже будет построен.
Если все три спальни разместить рядом
В проектировании одноэтажного дома, где три спальни находятся друг возле друга, наблюдаются как положительные, так и отрицательные моменты. К плюсам относится то, что комнаты отдыха размещены далеко от кухни и гостиной, где шумно.
Если дети еще маленькие, то их нахождение недалеко от родительской спальни удобно.
Не каждому будет по душе столь близкое нахождение спален. В случае, когда будущий хозяин коттеджа предпочитает уединение, стоит продумать о видоизменении проекта дома.
Особенности
Коттеджи, площадь которых насчитывает до 150 кв. м — идеальное сочетание свободного пространства и относительно недорогого обслуживания. В проектах одноэтажных домов с тремя спальнями предусматривается достаточное количество полезного пространства. Наличие нескольких спален, просторной гостиной и кухни обеспечивает комфорт.

Пример №2 одноэтажного дома с тремя спальнями
Дома подобной площади позволяют проявить фантазию в планировке и дизайнерском подходе. Затраты на стройку можно считать приемлемыми. Если нет возможности накопить на коттедж, большинство банков готовы выдать ипотеку под такой тип жилья. Считается, что дом рассматриваемой площади не только легче построить, но и проще продать при необходимости. Проживание в собственном загородном коттедже прекрасно подходит для многодетных семей или для тех, кто постоянно принимает у себя большое количество людей.
Этап проектирования включает в себя также выбор строительных материалов. К примеру, постройка дома из кирпича обладает преимуществами, из которых выделяется практичность и надежность. Затраты на строительство небольшого одноэтажного коттеджа сравнительно невелики. Устройство перекрытий и отделка обходится дешевле и имеется достаточное количество помещений в доме.

Если площадь коттеджа менее 100 кв. м, то для расширения пространства может потребоваться возведение дополнительных элементов, например, мансарды или цокольного этажа. Но в случае, когда проект рассчитан на большие размеры, уже не понадобится дополнительных пристроек. Будет претворена в жизнь такая планировка, которая учитывает все детали и пожелания.
Минусы такого проекта
Одноэтажные строения обладают множеством преимуществ, но выделяются и недостатки:
- На этапе проектирования коттеджей с большой площадью могут возникнуть трудности. Они связаны с необходимостью продумать пространство, чтобы проходных комнат было как можно меньше. Особенно это касается помещений для отдыха (гостевые, спальни, детские). От этого будет зависеть комфорт всех членов семьи.
- Проект дома с тремя спальнями, который обладает внушительными габаритами и имеет всего один этаж, предполагает значительные затраты на установку крыши. При таких условиях кровля может требовать частого проведения обновления или планового ремонта, что повлечет за собой новые затраты.
Увеличиваем функциональность
При планировке одноэтажного дома с тремя спальнями стоит учитывать некоторые особенности для каждой из комнат. К примеру, размеры гостиной зависят от того, какое количество человек будет проживать в коттедже. При планировании площади кухни принимается во внимание будущее оснащение, а также продумывается размещение техники согласно ее размерам.

Пример №3 одноэтажного дома с тремя спальнями
Если проект дома подразумевает небольшую площадь, то стоит увеличить функциональность каждого квадратного метра. Практично в данном случае будет совмещение комнат, что помогает увеличить пространство внутри строения. Обычно объединяют санузел.
К примеру, под кухню и столовую можно использовать одно помещение. В этом случае высвобождается дополнительное пространство, которое стоит применить для организации, к примеру, гардеробной комнаты или просто для увеличения площади спальни.

Небольшая и практичная гардеробная
Вариант обустройства цокольного этажа позволяет использовать его как кладовое помещение, бильярдную, спортивный зал или просто дополнительную жилую комнату. При строительстве мансардной крыши можно рассчитывать на то, что она будет задействована для большой гостиной или других целей.
Совмещение кладовой и котельной также возможно. Это позволит высвободить некоторое пространство, но с точки зрения безопасности такой вариант не считается подходящим. Подобные элементы совмещения дают возможность внести разнообразие в планировку коттеджа, внести корректировки в его функциональность и сделать внешний вид привлекательней.